Business

Big Indian Land traffic change just rerouted drivers for the new Costco site

Construction of the Costco and other Indian Land businesses just prompted a major traffic change on Charlotte Highway, and it’s unclear how long it will last.

Northbound drivers on U.S. 521 can’t turn left onto Possum Hollow Road. Possum Hollow traffic can’t turn left to head northbound on U.S. 521, or Charlotte Highway, either. Lancaster County announced the changes Thursday and it’s undetermined how long they’ll last, according to the county.

The move was made due to construction at Costco and The Exchange at Indian Land. Cutting off left turns will allow construction of new turn lanes and intersection upgrades for the retail sites, according to the county.

U.S. 521 runs like a spine through the Lancaster County panhandle, connecting Charlotte and the Ballantyne area in North Carolina with Lancaster, Rock Hill and other destinations via Indian Land. It’s the biggest traffic concern in the county, and the biggest part of a new 1% sales tax proposal for road improvements that voters will decide in November.

Possum Hollow functions like a bypass for U.S. 521, from S.C. 160 on the north to The Exchange on the south.

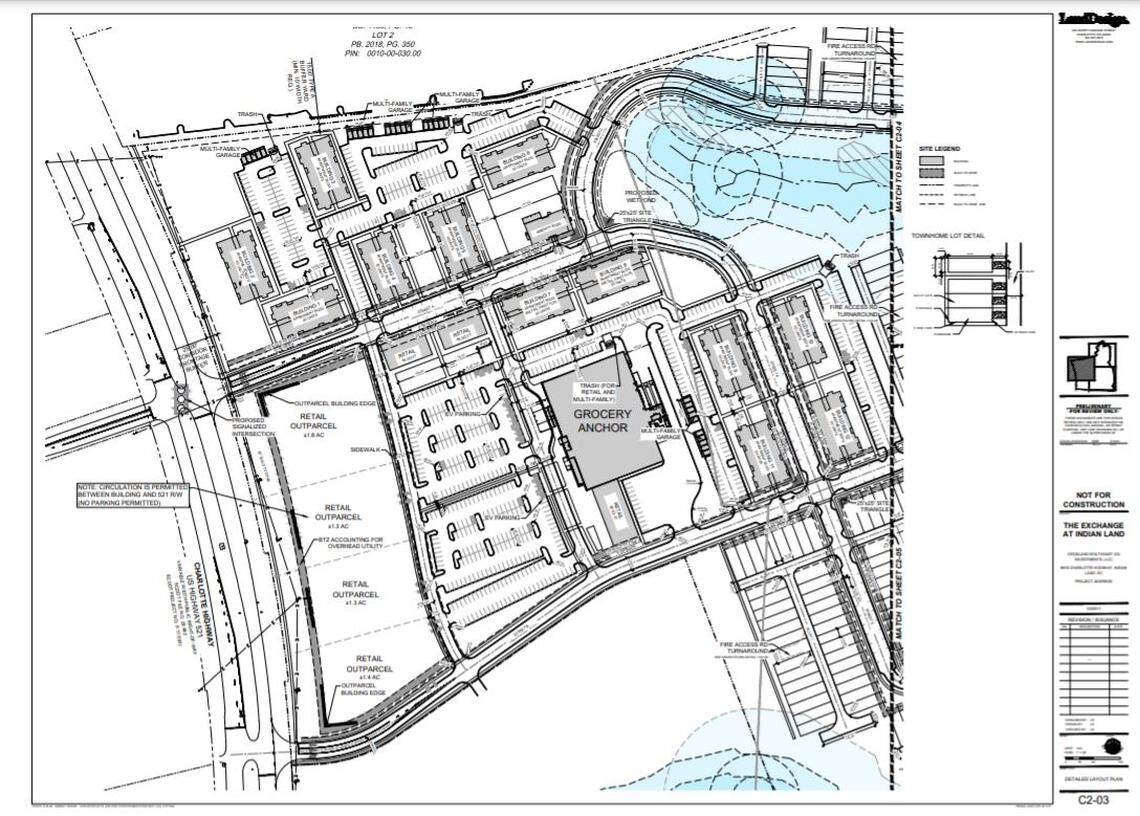
Costco, Exchange growth in Indian Land

The Exchange, a $400 million project on the east side of Charlotte Highway across from Possum Hollow, has a Costco and a Lowes Foods under construction. Both are expected to open this year. The project also includes more than 700 apartments and townhomes.

This spring, Exchange developer Crosland Southeast asked Lancaster County to allow more commercial space. Costco and a nearby Target store also under construction have led to increased interest from other retailers wanting to come to Indian Land, Crosland senior Vice President Yates Dunaway told Lancaster County Council in March.

Dunaway mentioned Longhorn Steakhouse, medical office space, a dentist and coffee shop as possibilities.

Apartments, townhomes and a grocery store are planned at The Exchange in Indian Land, the site of a new Costco warehouse store.
Apartments, townhomes and a grocery store are planned at The Exchange in Indian Land, the site of a new Costco warehouse store. Lancaster County

U.S. 521 upgrades

Lancaster County voters turned down a 1% tax for roads last fall, when more than 52% of voters chose not to start an up to 15-year tax that could’ve generated $405 million. County officials revamped the plan for a 10-year or $253 million vote this fall. Both proposals focused heavily on U.S. 521.

Lancaster County also applied this spring to the South Carolina Transportation Infrastructure Bank for $40 million to improve U.S. 521. That amount is about half of what the project would cost, according to recent Rock Hill-Fort Mill Area Transportation Study estimates.

Upgrades could include widening, intersection improvements or traffic pattern changes.

Related Stories from Rock Hill Herald
John Marks
The Herald
John Marks graduated from Furman University in 2004 and joined the Herald in 2005. He covers community growth, municipalities, transportation and education mainly in York County and Lancaster County. The Fort Mill native earned dozens of South Carolina Press Association awards and multiple McClatchy President’s Awards for news coverage in Fort Mill and Lake Wylie. Support my work with a digital subscription
Get unlimited digital access
#ReadLocal

Try 1 month for $1

CLAIM OFFER