Business

Plans for another big Lancaster County shopping center hinge on more new homes

Is Lancaster County’s next big shopping center worth adding hundreds of homes in an area that’s already putting pressure on the county?

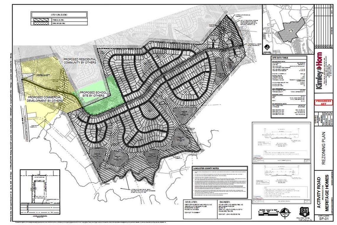
That’s a big question facing planners, with a property owner proposing two projects off U.S. 521 across from the Roselyn neighborhood. One would add 300,000 square feet retail, commercial, medical or neighborhood services on 63 acres. The other would bring 578 new homes on 356 acres.

The Lancaster County Council will have the final say on rezoning for both plans. The county Planning Commission, as a recommendation to council, voted unanimously in favor of the commercial project but unanimously against the residential one.

Yet the two projects aren’t that easily separated.

“It’s not a simple answer, if this gets rejected or reduced, that’s not going to happen,” said Mike Bilodeau with Charlotte-based developer MPV Properties. “But I don’t want to downplay the importance of density to ultimate success in commercial development.”

What is coming off Charlotte Highway?

Preliminary plans for the commercial property at Charlotte Highway and McAteer Road show a two-story medical office building, a grocery store, three anchor store buildings from 30,000 to 98,000 square feet and eight smaller commercial buildings combining for 65,000 square feet.

MPV Properties has had six large projects in Indian Land since 2000, combining for about 600 acres and $1 billion in construction. They’ve worked on jobs like the Walmart shopping center, the Red Ventures campus, Edgewater, Bailes Ridge and RedStone.

The shopping center would be the southernmost of those project, nearer the city of Lancaster than the North Carolina line.

“We understand that all of those are needs here in the middle part of the county,” said Sara Shirley with design firm Kimley-Horn‘s Fort Mill office, part of the MPV project. “It is dependent on the residential growth in the submarket. The idea would be to bring services here so that people would not need to go up to Indian Land in order to shop.”

Homebuilder Meritage Homes would build the 578 homes. In addition to the more than 1,800 homes coming across the street at Roselyn, the Meritage site runs alongside a property where Lennar Homes wants to build 926 homes on 625 acres. The Meritage and Lennar projects propose land donations that could be combined for a school site, and an area for an EMS station.

Lancaster County schools, emergency responders, law enforcement and other public services are trying to keep up with homes that have already made Lancaster the third-fastest growing county in the state since 2020. A bond for new schools and a tax to repair roads failed last year at referendum votes, and a revised road bond failed again this month.

“I totally believe it would be a quality development,” Planning Commissioner Frances Liu said of the Meritage plan. “But it’s just too many people on the roads and in the schools, when we are being begged to do what we can (to limit growth).”

Without the rezoning, she said, Meritage still can build up to 355 homes on the site.

“Voting no to rezone this is not a vote against growth,” Liu said. “It’s a vote for controlled growth.”

A Meritage Homes proposal could add 578 homes on nearly 400 acres in Lancaster County.
A Meritage Homes proposal could add 578 homes on nearly 400 acres in Lancaster County. Lancaster County

Commercial growth tied to population

The Meritage and MPV properties are intertwined, and not just because MPV managing partner Bailey Patrick is the property owner. Funding for community needs comes from the increased tax base new business brings, he said.

“The commercial is where the real tax base comes in, and you need these rooftops to support it,” Patrick said. “But that will keep traffic from going north to Indian Land to shop.”

Commissioner Lynette Hinson doesn’t believe the county should feel pushed to approve the Meritage rezoning just to get the shopping center. In addition to projects right beside the properties, Lancaster has large subdivisions approved or proposed that would more than double its population in the next decade or so.

Even if the Meritage project doesn’t make or break the retail part, it certainly would help, Bilodeau said. Potential tenants and lenders draw concentric circles around a site and evaluate the number of home, type of homes, average household size, number of kids and family income levels.

“Those are key criteria when they’re looking at locations,” Bilodeau said. “And if they find that the community is lacking, then it’s going to take more time. That’s just the reality. It’s not that it can’t happen. It’s that it’s going to take longer.”

He points to the movie theater shopping center at RedStone, which MPV waited more than a decade to develop as Indian Land grew. Recent Indian Land additions like Costco and Target wouldn’t have opened a decade or two ago there, he said.

“I don’t see that level of growth happening right away down in the southern part of the county, but there’ll come a time when there’ll be a need for services,” Bilodeau said.

The Roselyn project piqued interest near Lancaster, that’s grown into several large residential and commercial proposals. Roselyn brought utility connections to the area, while the county lists space south of the Indian Land panhandle as a growth corridor.

“As we see the next evolution of Lancaster County and the growth, we know obviously it’s going to move south,” Bilodeau said.

The new shopping center off Charlotte Highway would serve those new homes, but not just those homes. The developer expects to create a regional shopping site in line with others that have popped up around population centers—Promenade at Carolina Reserve near Sun City, RedStone near a host of new panhandle neighborhoods.

The success of the development, quality of retailers and the speed at which they open are all tied to population counts, Bilodeau said. Even if downscaling the Meritage request wouldn’t kill the commercial piece.

“What I am recognizing, though, is a truism as it pertains to retail, commercial development,” Bilodeau said. “It is entirely dependent on rooftops.”

John Marks
The Herald
John Marks graduated from Furman University in 2004 and joined the Herald in 2005. He covers community growth, municipalities, transportation and education mainly in York County and Lancaster County. The Fort Mill native earned dozens of South Carolina Press Association awards and multiple McClatchy President’s Awards for news coverage in Fort Mill and Lake Wylie. Support my work with a digital subscription
Get unlimited digital access
#ReadLocal

Try 1 month for $1

CLAIM OFFER